Immobilienangebot
5 Wohnungen im gepflegten Mehrfamilienhaus mit 11 Parteien
28816 Stuhr, Etagenwohnung zum Kauf
Kontaktdaten
-
NameSandra Basse
-
FirmaBasse Immobilien OHG
-
AdresseKattenturmer Heerstraße 126
28277 Bremen -
E-Mail Direkt
-
Tel. Durchwahl
-
Fax0421/8786931
Objektdaten
-
Objekt ID2FY685W
-
ObjekttypenEtagenwohnung, Wohnung
-
Adresse28816 Stuhr
-
Wohnfläche ca.376 m²
-
Baujahr1976
-
BödenFliesenboden, Laminat, Teppichboden
-
derzeitige Nutzungvermietet
-
EnergieträgerÖl
-
HeizungsartZentralheizung
-
StellplatzStellplatz
-
KäuferprovisionWir weisen Sie darauf hin, dass im Falle eines Vertragsabschlusses vom Erwerber eine Vermittlungsprovision in Höhe von 3 % zzgl. 19 % MwSt. an uns zu zahlen ist.
-
Kaufpreis619.000 EUR
Ausstattung / Merkmale
- ✓ Stellplatz
- ✓ Zentralheizung
Energieausweis
-
EnergieausweistypVerbrauchsausweis
-
Ausstellungsdatum29.01.2018
-
Gültig bis28.01.2028
-
GebäudeartWohngebäude
-
Baujahr lt. Energieausweis1976
-
PrimärenergieträgerÖl
-
Endenergieverbrauch145,00 kWh/(m²·a)
-
EnergieeffizienzklasseE
Objektbeschreibung
Beschreibung
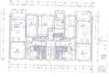
5 Wohnungen im gepflegten 11 Parteienhaus und 5 Stellplätze
zu jeder Wohnung gehört noch ein Kellerraum, sowie Gemeinschaftsräume:
Fahrrad-u. Trockenkeller
Wohnung 3,5,6,7,10 sind in einem gepflegten Zustand,
NKM p.a. 28.909,00 €
Bitte haben Sie Verständnis dafür, das wir auf Wunsch der Mieter keine Fotos veröffentlicht haben.
Sonstige Informationen
Raumaufteilung
Wohnung Nr. 3: 3 Zimmer, Küche, GWC, Bad,. Balkon 84,4 m²
Wohnung Nr. 5: 1 Zimmer, Küche, Bad, Balkon 40,13 m²
Wohnung Nr. 6: 3 Zimmer, Küche , Bad, GWC, Balkon 82,4 m²
Wohnung Nr. 7: 3 Zimmer, Küche, Bad, GWC , Balkon 84,6 m²
Wohnung Nr. 10: 3 Zimmer, Küche, Bad, GWC, Balkon 84,6 m³
Diverses
Sämtliche bautechnischen u. technischen Objektdaten sind unverbindlich. Sie basieren auf Angaben der Verkäufer. Dieses ist eine vorab Information. Als Rechtsgrundlage dient allein der notarielle Kaufvertrag. Rechtsgültig ist der Kaufvertrag.
Der Inhalt ist vertraulich, eine Weitergabe unseres Angebotes an Dritte ist nicht gestattet und verpflichtet bei Umgehung zum Schadenersatz in Höhe der uns entgangenen Provision.
Der Maklerauftrag kommt auch dann zustande, wenn Sie sich aufgrund unseres Angebotes direkt mit dem Verkäufer (Auftraggeber) in Verbindung setzten und von diesem Angebot Gebrauch machen, oder das Objekt von anderer Seite angeboten wird.
Nach Vertragsabschluss ist die angegebene Courtage fällig, selbst wenn wir bei dem Vertragsabschluss nicht mitwirken.
Wir weisen Sie darauf hin, dass im Falle eines Vertragsabschlusses vom Erwerber eine Vermittlungsprovision in Höhe von 3 % zzgl. 19 % MwSt. an uns zu zahlen ist.
Wir haben mit dem Verkäufer einen provisionspflichtigen Maklervertrag in gleicher Höhe abgeschlossen.
Lage
Ortsrandlage in Stuhr Brinkum mit idyll. freien Blick , sehr guter Infrastruktur vor den Toren der Stadt!
Optimale Autobahnanbindung A 1 – A 28 sowie der Bremer Flughafen in wenigen Autominuten zu erreichen , die Bremer City ca. 10 km sowie öffentl. Verkehrsmittel fast vor der Tür.
Einkaufen , Schulen , Kindergarten, Ärzte, Banken etc. in unmittelbarer Nähe sowie
das Einkaufszentrum in Brinkum Brisek und Brinkum Nord/ Grenze Bremen der begehrte und bekannte „Ochtumpark“ mit div. interessanten Outletläden , Einkaufsmarkt / Marktkauf, Ikea , Baumarkt und und und.
Weitere Angebote im nahen Umfeld in Weyhe /Kirchweyhe mit Bahnanbindung an die Bremer City ca. 10 – 12 Min.
Genießen Sie die idyllische traumhafte Natur im nahen Umfeld die reizvolle Natur an der Ochtum und in der Leester Marsch.
Die ungefähre Position der Immobilie auf Google Maps ansehen (Link auf externe Website)




